shanghai rowhouse
location: Shanghai, China
client: private
status: complete
collaborators:
Jiageng Guo (project lead),
Chengcheng Zhu (construction manager)
client: private
status: complete
collaborators:
Jiageng Guo (project lead),
Chengcheng Zhu (construction manager)
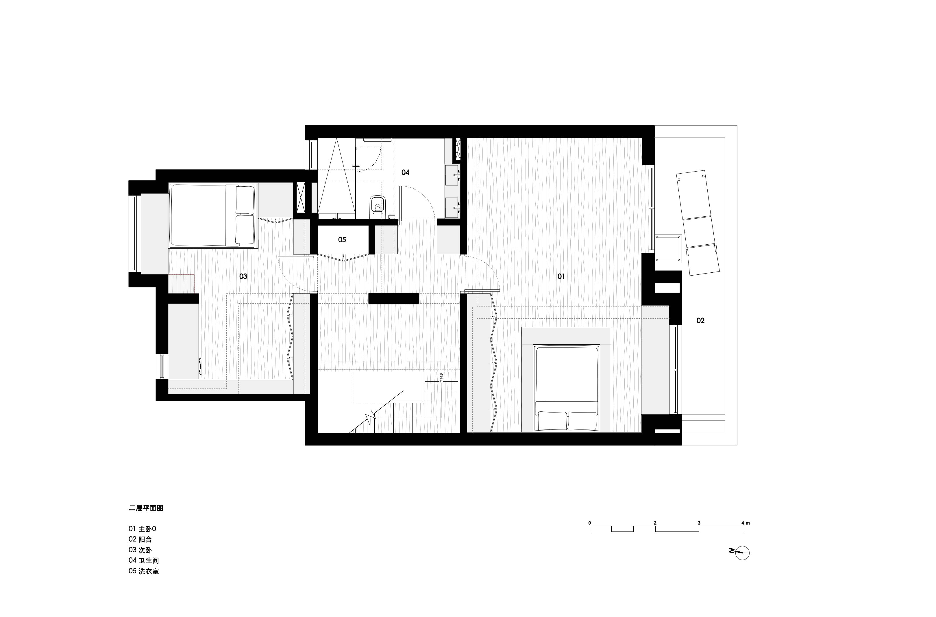
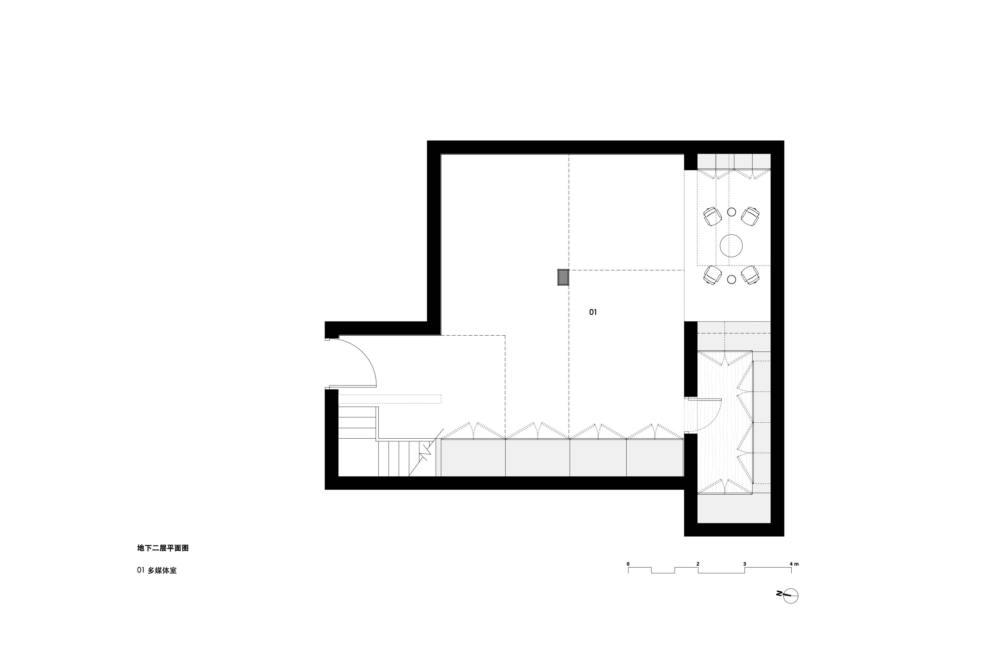
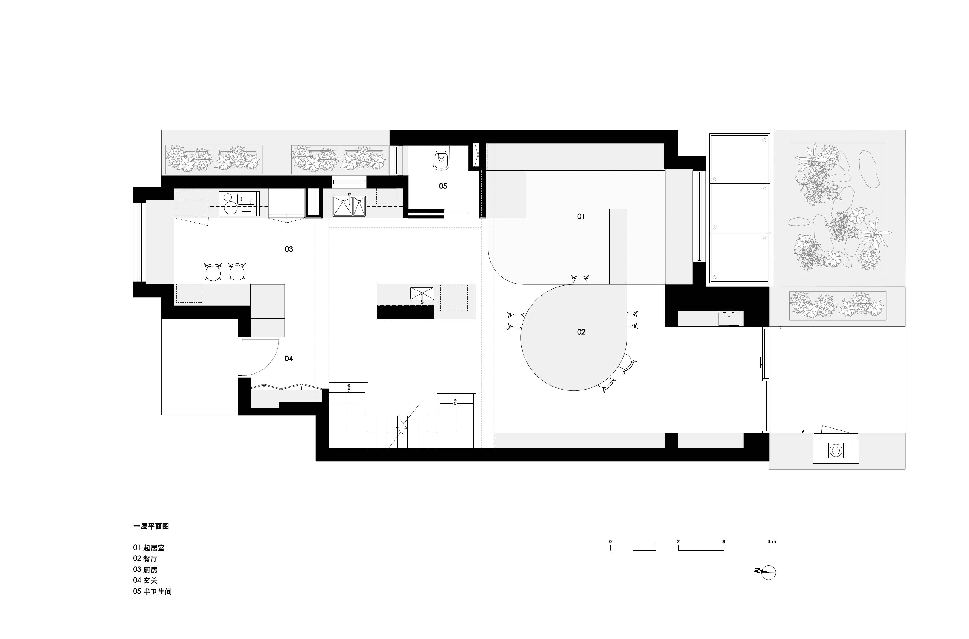
Design and fitout for a three-story modern rowhouse in one of Shanghai’s near suburbs.
drawings
![]()
![]()
![]()
![]()
images
©jiageng guo
![]()
©jiageng guo
![]()
![]()
![]()
©jiageng guo 
©jiageng guo



